1701/3 Yarra Street, South Yarra
$750 per week
Last Listed: 11/02/25
Recommended Properties
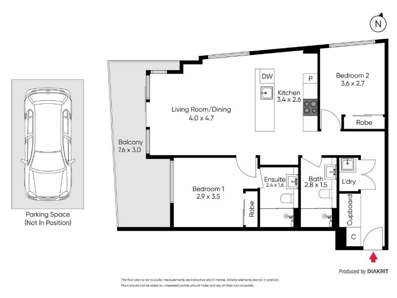
Luxury 2 Bedroom Apartment with City and Bay Views
Offering luxury living at every turn, this light-filled apartment showcases spectacular city and bay views from its northwest aspect on the 17th floor. Featuring two large bedrooms with built-in wardrobes, including a private ensuite off the main bedroom, this apartment offers a clever floor plan to maximise space. Beautifully finished with attention to detail, offering open-plan living and dining space with ducted heating/cooling, that seamlessly connects with a stylish kitchen featuring top-of-the-range Miele appliances. This property also features a European laundry, basement parking with storage cage and private access to a pool, gym, sauna, and rooftop space with a BBQ. Chapel and Toorak Street cafes and restaurants are at your doorstep, as well as South Yarra train station, trams and Yarra River bike trails. Be quick to register your interest and inspect.