23 Wright Street, Middle Park
$1450 per week
Last Listed: 1/12/23
Recommended Properties
Luxury living on a corner location
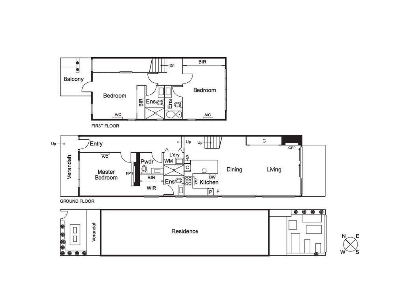
Combining luxury living with traditional charm, this immaculate residence boasts a prized location a short walk to the beach, Albert Park Lake, cafes and more. Boasting plenty of street appeal, the tastefully re designed terrace is positioned on a low maintenance corner allotment less than 300m from Middle Park Primary School. The light filled interior showcases quality finishes including high ceilings, travertine tiles, marble benchtops and American Oak timber floors. Detailed cornices, fretwork and stained glass windows are among the period style features. Forming the hub of the home is a kitchen with a waterfall island, soft closing drawers and stainless steel Miele appliances. The open plan living/dining, with a gas log fire and built in cabinetry, flows onto a sun drenched alfresco area. Well designed for a family, all three bedrooms come complete with private en suites including the separately zoned master bedroom with feature fireplace, ceiling rose and walk through robe. Two further bedrooms one with a balcony and both containing built-in robes. Plantation shutters, a ground floor powder room, ducted heating and cooling, split system air conditioning in bedrooms, video intercom and ROW access are other highlights of this well appointed property. A quick stroll to the Melbourne Sports and Aquatic Centre as well as tram and bus stops, this home offers an enviable lifestyle that is sure to impress.