9/3 Lambell Terrace, Larrakeyah
$650pw
Last Listed: 14/07/23
Recommended Properties
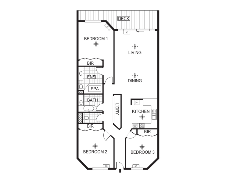
Stunning 3 Bedroom Unit in City!
Perfectly located in the city this stunning unit is only a short walk to the iconic Cullen Bay sunset lawns, restaurants, coffee shops and is within walking distance to the CBD and a short 5-minute commute to the Darwin waterfront, Mindil beach and the Darwin Botanical Gardens. This home is central to all Cullen Bay and the Darwin City has to offer. With no outdoor maintenance this 3-bedroom home is perfectly suited for the busy family, the couple, or the downsizers. The main living and dining area is an open plan design creating a sense of inclusiveness and warmth. From here there are glass sliding doors that gives you access to the gorgeous veranda which has stunning ocean views that overlooks the park into Cullen Bay, you will love relaxing on your veranda watching the sunset and enjoying the dry season weather or watching the storms roll in during wet season. Cook up gourmet meals in the wrap around kitchen with a huge island preparation bench overlooking the living areas- never miss a footy kick off again! With plenty of overhead and under bench cabinetry you will never be short on storage space and comes with a dishwasher. The master bedroom is a generous size finished with gorgeous wooden floorboards, built in robes, split system air-conditioning and has direct access to the verandah that overlooks the Cullen Bay area with ocean views. Its ensuite bathroom has its own spa bath where you can soak the day away and is complete with a single vanity and toilet. All the other bedrooms have built in robes and split system air conditioning and are situated away from the main living area. Tucked away in the hallway is the laundry area which comes complete with a dryer and linen cupboard space. Opposite this is the main bathroom which has its own bath, shower over the bath and a separate toilet. This property comes with a secure off-street parking for one car and guest parking available. It is a well-maintained secure complex with intercom, lift, storeroom, pram and wheelchair access. This fantastic unit is vacant and move in ready! Call to view today. Highlight Points: • 3-bedroom unit with stunning ocean views • Large kitchen with a huge prep bench creating loads of working space • Open plan living areas, kitchen overlooks dining and living areas • Living area flows through sliding doors to the balcony • Balcony overlook the park and has ocean views • All bedrooms come with built in robes and master with ensuite • Ensuite features spa corner bath • Main bathroom has a bath and shower • Internal laundry with dryer and linen cupboards • Secure off-street parking for 1 vehicles with guest parking • Lift in complex, intercom, and storeroom • Unit is situated in the middle on 3rd floor