Recommended Properties
**APPLICATION ACCEPTED - NO FURTHER INSPECTIONS WILL BE CONDUCTED**
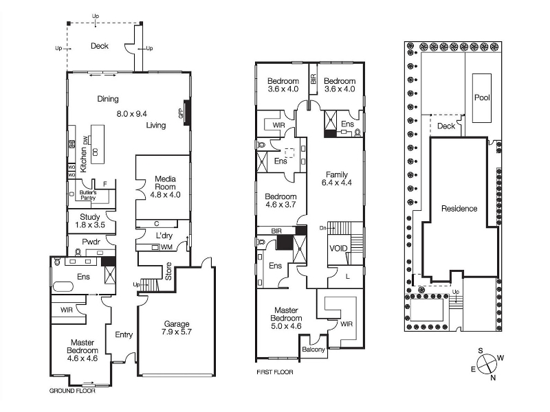
**APPLICATION ACCEPTED - NO FURTHER INSPECTIONS WILL BE CONDUCTED** Stunning luxurious family home offering a flexible floor plan and fantastic family accommodation on an extraordinary scale. The latest luxury residence from Verde Homes set on a full-sized family block, this spectacular five bedroom plus study, 4.5 bathroom home offers exceptional prestige new home value with a choice of master-suite upstairs and down, ensuite access for every bedroom, (and walk-in-robes for most) ...plus a living zone for all family occasions. With a quiet formal zone perfect as a media lounge, expansive pool-view family living to lounge and dine, and a vast first-floor lounge to fit both work and play, this immense home is deluxe-appointed with a full Miele appliance kitchen (with multi-ovens and integrated dishwasher), thick Caesarstone benchtops, tiled floors and designer lighting. With all the luxuries (including zoned climate-control, an alarm, fitted walk-in and mirrored robes), the home also offers the luxury of immensely practical family living - with a genuine butler's pantry (with sink), a self-cleaning fully-tiled pool and an oversized double auto-garage plus plentiful parking on an exposed aggregate driveway. In the heart of the education precinct, close to St. Leonards and Haileybury in the Zone for Brighton Beach Primary School, this is outstanding all-new family living with every educational, recreational and lifestyle opportunity. Inspections will certainly impress.