6 Brady Street, Richmond
$900pw
Last Listed: 1/06/25
FREE utility connection available with this property!
When it’s time to move, look out for the Move Me In invitation, and compare some of the best electricity plans, internet, removalists, gas plans, and more!
Compare dealsRecommended Properties
Light Filled Three Bedroom Home
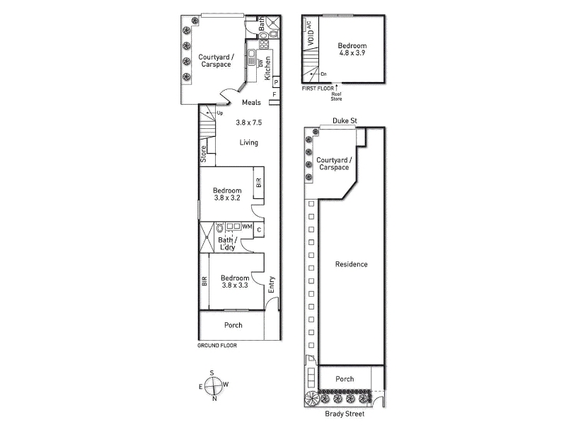
This spacious three-bedroom home, nestled between Bridge Road and Swan Street's vibrant cafés and restaurants, has everything you need. Close to Melbourne sporting precincts and convenient transport links, this striking period house provides the perfect inner-urban home. Behind a welcoming white picket fence, this light-filled home offers a modern kitchen with gas stove top, stone benchtops, a dishwasher and plenty of cupboard space. Adjoining is a large living room complete with polished timber floors, and both ducted and split system heating and cooling. The ground floor offers two spacious bedrooms with large built-in robes, serviced by a sleek new central bathroom. A third bedroom of generous proportions, has a large window allowing plenty of natural light to fill the space. A second external bathroom is at the rear of the house. This stunning home is complete with a secure, low maintenance courtyard and off-street parking, accessible via a roller door on Duke Street. The home is also equipped with an alarm system. Would you like to Inspect this property? To select your preferred inspection time click the “Book Inspection” button and enter your details and we will respond instantly! Alternatively, visit the property advertisement on www.jelliscraig.com.au and click Book Inspection