12/28-42 Annie Street, NEW FARM
$1,300pw
Last Listed: 7/06/23
FREE utility connection available with this property!
When it’s time to move, look out for the Move Me In invitation, and compare some of the best electricity plans, internet, removalists, gas plans, and more!
Compare dealsRecommended Properties
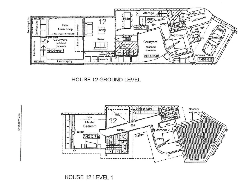
Executive Townhouse with Plunge Pool + Monthly Maintenance
This multi-level, free-standing townhouse is ideally located in the best suburb in Brisbane, New Farm. It offers convenience and sophisticated living in this lovely part of Brisbane. In comparison to the number of townhouses and units on the market this residence offers the lucky residence two large outdoor areas, a private plunge pool lots of storage. This townhouse has features that is rarely available at such good value. Property Features Include: - 3 spacious bedrooms all fitted with plenty of storage - Master bedroom with double vanity ensuite and bathtub - 2 luxury bathrooms - Additional powder room downstairs - Ducted air conditioning throughout - Generous kitchen with dishwasher, gas cooking & stone benches - Secure lock up garage with plenty of storage space - Designated laundry in garage - Internal private courtyard - Secondary private courtyard with direct access to the plunge pool - Plunge pool with monthly maintenance included - Tenant to pay chemicals - Pet friendly upon body-corp approval (This will be a $99 body corp fee to lodge an approval request) Positioned in the heart of New Farm, this extremely well located 187m2 home is just a short stroll to everything the suburb has to offer including New Farm Park, Howard Smith Wharves, the Riverwalk, James St, restaurants, cafes and New Farm Cinema. This incredible home is a delight to live in so apply now while you still can!