29 Albion Street, COTTESLOE
$995pw
Last Listed: 19/06/23
Recommended Properties
UNDER APPLICATION - Live the Coastal Life!
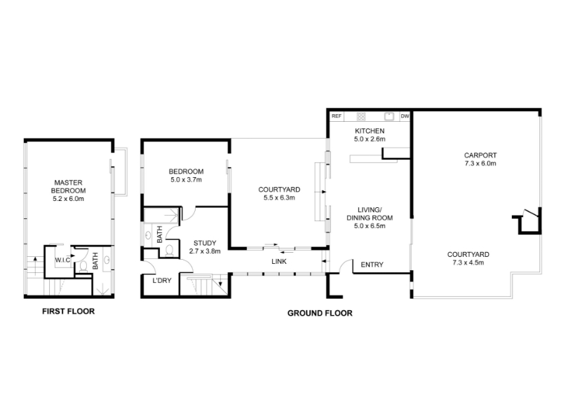
Situated in a quiet leafy neighbourhood in one of Perth's most desirable locations, this two bedroom two storey loft-style house is sure to impress! Recently renovated throughout, this amazing architect-designed residence offers you modern living and a short walk to the Napoleon Street café and shopping precinct. The spacious open plan area features a vaulted ceiling complimented with floor-ceiling windows soaking in an abundance of natural light and the kitchen has been beautifully finished with stone benches & stainless steel appliances. There's no doubt that you will fall in love with the massive loft-style master suite, which is large enough to set up an office/living area and is host to a walk-in-robe & ensuite. THE LOCATION Live the coastal dream with only a five minute drive to Cottesloe Beach and the Swan River foreshore, and positioned only a short walk to the Napoleon Street café strip and shops, Cottesloe Train Station, the Boatshed and Cottesloe Central. THE RESIDENCE > Fully renovated two bedroom, two storey house > Front private tranquil courtyard > Renovated kitchen with plenty of bench & drawer space > Spacious open plan area with huge, vaulted ceiling > Massive loft-style master bedroom with walk in robe, ensuite & balcony > 2nd bedroom & bathroom positioned downstairs > Study nook > Large central courtyard > Double remote garage > Storage room THE FINER DETAILS > Split system air conditioning > Ceiling fans > Floor to ceiling windows > Stone benches > Stainless steel appliances inc. dishwasher > Modern Hybrid jarrah-look flooring > Near-new carpet to bedrooms **Pets considered at the Owner's discretion** Ingoing Costs: Two weeks rent: $1,990.00 Bond (4 weeks rent): $3,980.00 Total Costs: $5,970.00 HOW TO VIEW THIS PROPERTY Arranging inspections is easy! Simply go to our website: www.jonesballard.com.au and click the 'Book Inspection' button for that rental property. To apply, the property MUST be viewed. Following your inspection a link to apply online will be emailed to you.