Recommended Properties
LARGE FAMILY HOME, POOL AND PRIME LOCATION!
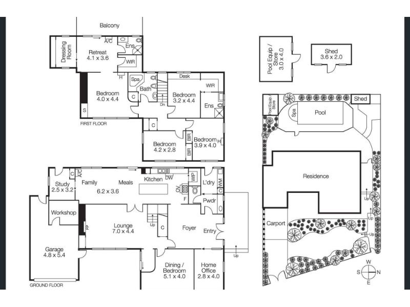
With significant street presence and established gardens this commanding double storey 5 bedroom plus a home office and separate study, 3 bathroom brick home offers ample accommodation for the family. Located in a premier Brighton East street close to all amenities, this immaculately presented home comprises living room with: -Polished boards and fireplace (non operable) and a downstairs bedroom. -Open plan kitchen with SMEG appliances -Stone bench tops overlooking the meals and informal living zone looking out to the rear garden with substantial in ground pool. -A powder room, separate laundry can also be found on this ground floor. -Upstairs comprises massive master bedroom with his and her walk-in-robes -ensuite and parents retreat area that opens out to a north-west facing balcony -a large 2nd bedroom with walk-in-robes shares a bathroom with the 3rd bedroom with BIR's, 4th bedroom has BIR's and a further family bathroom. An entertainer's delight, the brick paved north-west facing yard has a fantastic pool . Further features include: -Double lock-up garage with storage area -double carport - gas ducted heating, water tanks and excellent storage. This is a fabulous opportunity for the family who needs ample accommodation in a brilliant Brighton East address.