8 Connemara Street, BOX HILL
750.00 Per Week
Last Listed: 17/06/24
FREE utility connection available with this property!
When it’s time to move, look out for the Move Me In invitation, and compare some of the best electricity plans, internet, removalists, gas plans, and more!
Compare dealsRecommended Properties
INSPECTION CANCELLED: DEPOSIT RECEIVED
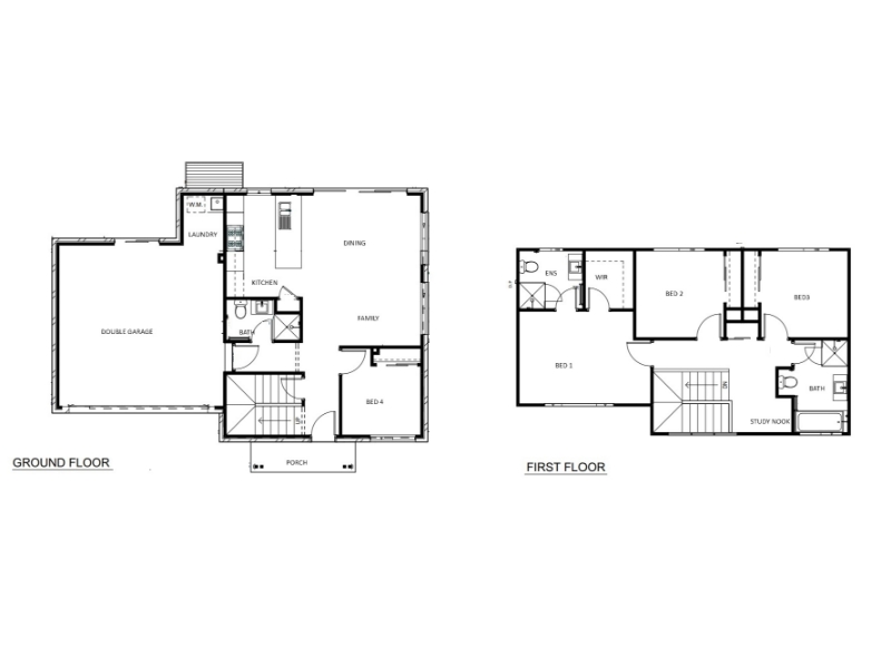
Welcome to another R&W Property situated in the Hills of Carmel at 8 Connemara Street, Box Hill. This property offers an abundance of features including: - Master bedrooms with walk in wardrobe and spacious ensuite - Three additional good size bedrooms, all include built in robes - Modern bathroom with separate shower and free-standing bath-tub - Second bathroom downstairs includes shower. - Open plan, light filled living and dining with tiled floor - Stylish modern kitchen with 900mm, 6 burner gas cooktop + 900mm electric oven and includes a dishwasher, island bench and built in pantry. - Study nook located on the upstairs landing - Generous walk in understairs storage - Large double garage with internal laundry and access to backyard - Low maintenance wrap around backyard Positioned within a short drive to local schools, shops and parklands including Rouse Hill Public School, Rouse Hill High School, Santa Sophia Catholic College, Box Hill City Centre, and Ceres Way Reserve. Facts; Availability: 04/07/2024 Lease Period: 12 Months Available Pets: Subject to Application Cooking: Gas Laundry Facilities: Internal + access to backyard Heating/ Cooling: Ducted Unfurnished/ Furnished: Unfurnished Parking: Large Double Garage OPEN HOMES: Check for inspection times & register your details to be notified of the next open home. HOW TO APPLY: Apply easily and conveniently through our streamlined online application process via the Get in Touch Button. Be sure to register your name, number and email address to receive an application link. Applicants MUST have inspected the property before being approved for any R&W Property. It is prohibited to try and enter a property for lease without a R&W representative being there. Please respect the current tenant’s privacy and do not try to look inside the property outside an inspection time scheduled by R&W Disclaimer: All information provided herein is sourced from third-party entities we deem reliable. While we have no reason to doubt the accuracy of this information, we cannot guarantee its precision. All interested parties are encouraged to conduct and rely on their own inquiries. BEWARE: We do not advertise properties for rent on social media. If you find one of our properties on social media, please do not engage with them and do not pay any money to them. This is a common scam that the industry is seeing currently, and we want to protect you as the tenant.