Recommended Properties
PERIOD PERFECTION IN LIFESTYLE LOCATION!
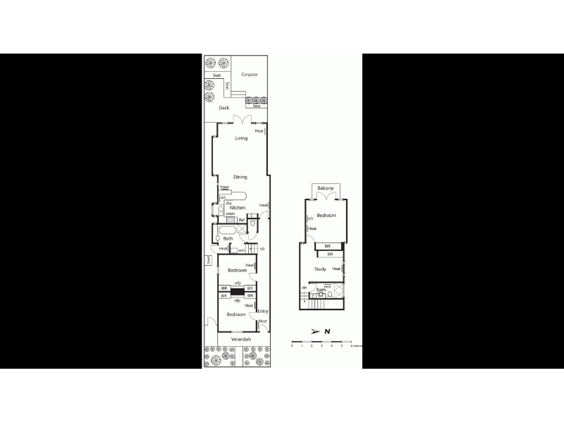
Proudly situated in one of Elsternwick's most sought after pockets, just a block from Glen Huntly Rd shops and schools, this renovated three bedroom weatherboard home includes a wonderful surprise. Could it be the well-established front garden and inviting verandah? What about the long, sky-lit Baltic Pine timber hallway with soaring high ceilings? How about the gorgeous, ornate OFPs within the front two BRs with BIRs? Perhaps it's the classic claw foot cast iron tub in the well-proportioned bathroom/laundry? Finally, it has to be the stunning rear open plan living/dining room. French doors also open out for seamless alfresco entertaining to a large decking with built in seating and step down to sand stone paved area. The kitchen boasts black granite bench tops including raised breakfast bar and full suite of stainless steel Smeg appliances, including a dishwasher. All wonderful inclusions for any home indeed! However, what takes you by surprise when you first see this renovated period home is the brilliant second storey! Unexpected from the street, the first floor includes a spacious carpeted second living area/home office with built in desk and open shelving. The adjacent room is the 3rd BR (master suite) and includes BIRs, and doors opening to a private balcony. Completing the second storey is a bright bathroom with double shower. In a premium location and so beautifully renovated, this surprising home also includes hydronic heating and roller blinds throughout.