9/120 Osmond Terrace, Norwood
$580pw
Last Listed: 10/01/24
Recommended Properties
Cozy Apartment in Norwood
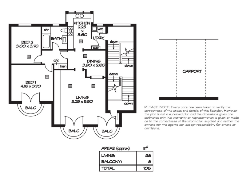
* Treetop apartment in premium group * 1st floor, front of group location * Solid brick construction with refreshing neutral tones throughout * Perfectly positioned overlooking a manicured central courtyard with established trees * Great location positioned within walking distance to Norwood Parade * Large living room with built-in shelving, dual French doors and double balconies * Central dining room * Refreshing modern kitchen offers 900 mm wide freestanding stainless steel stove, ample cupboard space, double sink, stainless steel workbench, pendant lighting, wrap around bay window and views over the local neighbourhood * 2 spacious bedrooms, both with quality carpets * Bedroom 1 with French doors and private balcony * Bedroom 2 with north facing window * Spacious main bathroom with separate bath and shower plus upgraded vanity * Separate laundry with direct exterior access * Secure single carport space behind automatic sliding gate * Ducted reverse cycle air-conditioning throughout * Only 2 km to the city Peacefully located within easy reach of all desirable amenities. Norwood Shopping Centre is a casual stroll away, along with the restaurants, entertainment and speciality shops of Norwood Parade. Public transport is easily accessed from Kensington Road or The Parade. Local schools in the area include Norwood Morialta High, Pembroke School, Marryatville High and Primary Schools, Rose Park Primary, Norwood Primary, St Joseph's School plus Pembroke School, St Peters Girls College and Loreto College. You are required to register to view the property. Lease start date: from 14/02/2024 Lease duration : 12 months Disclaimer: Photos are indicative only. All information is given to the best of our knowledge. Collins Property will not be held liable for any errors in typing and/or information.