9 Zeal Road, Winter Valley
$460pw
Move in: 30/04/26
Recommended Properties
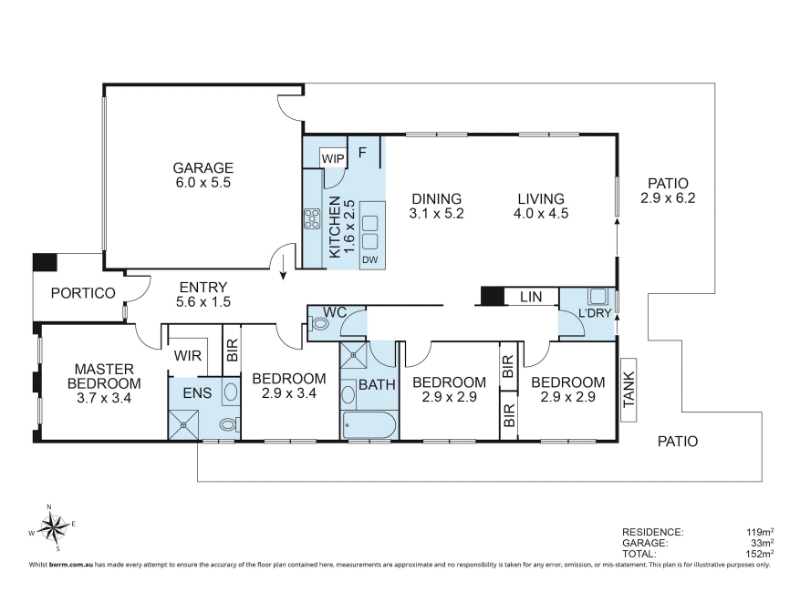
Modern 4-Bedroom Living in Prime Winter Valley Location
Step into modern comfort in the sought-after ALTO Estate, Winter Valley — perfect for families or professionals seeking space, style, and convenience. This Glenvill Homes build offers a thoughtfully designed layout featuring four spacious bedrooms and two contemporary bathrooms. The master bedroom includes a private ensuite and walk-in robe, creating a relaxing retreat at the end of the day. The heart of the home is the open-plan kitchen, complete with stainless steel appliances, sleek stone benchtops, and a generous walk-in pantry. Flowing seamlessly into the dining and living area, it’s ideal for entertaining or enjoying everyday living. Three additional bedrooms with built-in robes provide plenty of room for family, guests, or a home office. A separate laundry and low-maintenance yard add to the practicality of this home, making it perfect for a busy lifestyle. Conveniently located just minutes from Delacombe Town Centre, with easy access to shops, cafes, and everyday essentials. Local schools are nearby, and Ballarat CBD is only a short drive away. This is a fantastic opportunity to secure a brand new, low-maintenance home in a growing community. PLEASE NOTE - YOU ARE REQUIRED TO REGISTER FOR ANY INSPECTIONS. ONLY REGISTERED ATTENDEES WILL BE NOTIFIED OF CHANGES OR CANCELLATIONS TO INSPECTIONS. THE RENTER IS ALSO RESPONSIBLE FOR SEEKING THEIR OWN INFORMATION REGARDING INTERNET AND PHONE CONNECTIONS AT THE PROPERTY. Jellis Craig does not accept any liability or responsibility for any inaccuracy in any plan, drawing or rendering used in the advertising material to describe the land, property and any described features. The floorplan, measurements and land size are approximate.