Recommended Properties
Luxury Living In The Heart of East Melbourne
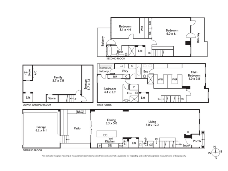
This amazing town residence is bathed throughout with natural light and positioned in the heart of East Melbourne. Located on the doorstep of Yarra Park and just a short walk to the city, this stunning home offers the perfect blend of privacy and convenience. Comprising spacious living room with gas fireplace on the ground floor, along with a powder room and a large kitchen equipped with top range Miele appliances, stone island benchtop. The adjoining dining area opens to a charming courtyard garden, creating the perfect space for entertaining.The first floor is home to the generous master bedroom, complete with an ensuite bathroom and dual dressing rooms. There is also a second bedroom with an adjacent bathroom, separate laundry area and balcony.The second floor provides an additional bedroom, bathroom and the option for a large 4th bedroom or a private retreat including balcony. A lower level also provides another living option with large space and multiple storage options. All levels have lift access for convenience.A double garage, providing secure parking for two vehicles complete this fantastic home.Other features include heating and cooling throughout, alarm system ( renters cost to have this recorded back to base ), and CCTV footage and an attic for additional storage above the garage. Would you like to view this property? Please see inspection details below and click on 'Request a time' or 'Email Agent'. By registering, you will be instantly informed of any updates, changes or cancellations for your appointment .You must enter your details to book an inspection time. Please note there is no entry without an appointment.