4 Sullivan Court, Belmont
$580pw
Move in: 6/05/26
Recommended Properties
Stylish Living in a Quiet Court Location
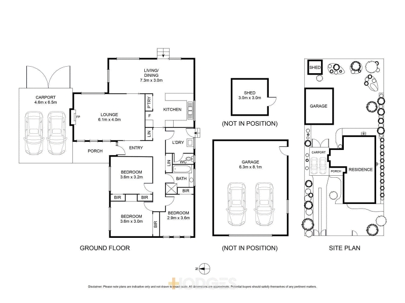
Spacious and well-maintained home in a peaceful court setting * Three generous sized bedrooms with built-in robes * Spacious light-filled lounge area with split system heating and cooling and ducted heating throughout * Functional kitchen with electric cooktop, dishwasher and ample storage * Open-plan living/dining area ideal for meals and entertaining * Central bathroom with separate bath, shower and toilet * Secure front and backyard with plenty of space * Double lock up garage with remote, garden shed and a double carport. * Short proximity of Roslyn Primary School, Belmont High, Christian College, McDonald Reserve. * Easy access to the popular Highton Village, High Street shopping strip, Waurn Ponds Plaza, the Surf coast and the Geelong CBD & Waterfront. If you are a property investor or looking to invest in property please contact our office on 5222 7325 to discuss how Jellis Craig Geelong can reduce your vacancy rate, maximise your rental return and maintain the value of your investment property