Recommended Properties
Unit 1 of Potentially 2 - Family Home!
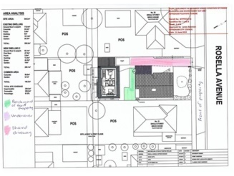
This well-presented family home is of convenience to all! Set in a convenient pocket of Werribee - within close proximity to public transport, schools, kindergartens and only a short distance to Pacific Werribee shopping centre. Property features include: • Three spacious bedrooms will built in robes • Two way bathroom with separate toilet • Kitchen/meals with stainless steel appliances • Separate lounge • Ducted heating and evaporative cooling Extra features include; floating floorboards, ample cupboard space, quality block out blinds throughout. Please note: there are currently approved plans and permits for a second dwelling to be built at the rear of the property in the next 6 - 12 months. The new tenancy will not include the backyard as this will be the location of the second dwelling. However, the new tenancy will have access to the backyard until construction starts and a temporary fence is installed. The new potential renter will be advised 2 months prior to commencement of works. Please see attached floorplan of the proposed second dwelling and proposed new . Disclaimer: The property is accepted as is at the start of the tenancy. Any requests for cleaning or enhancements must be included in your application. By applying, you confirm that you have inspected the property and are satisfied with its condition unless otherwise noted. 🔔 Be in the know, wherever you go! Register for real-time property updates and exclusive inspection times. Inspection attendance required prior to application submission. (PHOTO ID REQUIRED AT ALL VIEWINGS) At YPA Estate Agents 'our service will move you'