20 Maleela Grove, Rosanna
$950pw
Last Listed: 12/01/25
Recommended Properties
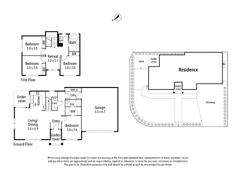
BRAND NEW TOWNHOUSE
This brand new luxurious and high-quality home offers four bedrooms and two bathrooms, spacious and open living area, kitchen with an array of bench space, premium SMEG oven and electric cooktop, and an integrated Bosch dishwasher. The master bedroom is positioned on the ground floor and is enhanced by walk-through robe storage and ensuite. Upstairs, there are three more bedrooms which all come with built in robes, with the top level also featuring a bathroom with freestanding bath and separate toilet, and a living retreat/study. Other features include a downstairs powder room, separate laundry, ducted heating and cooling, northern sun facing deck and low maintenance garden and an extra large double remote garage. Located within close proximity to Rosanna primary schools, Viewbank College, parklands, Rosanna Village shops, buses, and Rosanna Station. Do not miss the opportunity to inspect! *Blinds being installed 22nd January*