1/13 Drake Avenue, PARADISE POINT
$730pw
Last Listed: 31/01/25
FREE utility connection available with this property!
When it’s time to move, look out for the Move Me In invitation, and compare some of the best electricity plans, internet, removalists, gas plans, and more!
Compare dealsRecommended Properties
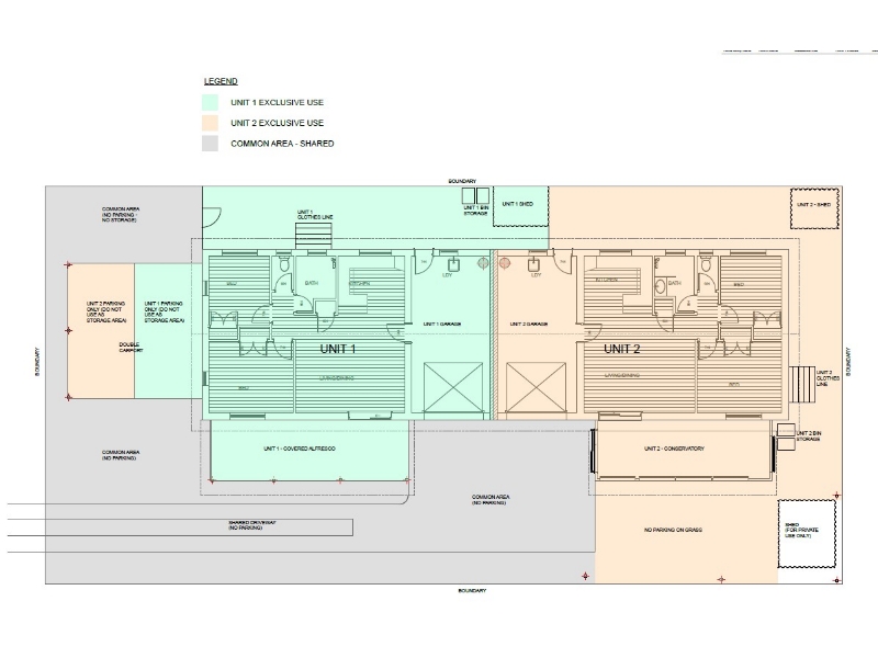
Stunning Single Level Duplex
Located within a short stroll to the Broadwater & Paradise Point cafes this beautifully renovated single level duplex is a must see. Features - 2 good sized bedrooms - Modern kitchen with dishwasher - Split system air conditioning - Single garage with internal access plus single carport - Huge covered outdoor entertaining area - Fenced rear courtyard with shed - Beautifully renovated with new paint, carpet, kitchen & bathroom - All lawns & garden maintenance included Disclaimer: We have in preparing this information used our best endeavours to ensure that the information contained herein is true and accurate, but accept no responsibility and disclaim all liability in respect of any errors, omissions, inaccuracies or misstatements that may occur. Prospective vendors, purchasers & tenants should make their own enquiries to verify the information contained herein.