Recommended Properties
The best of CBD living
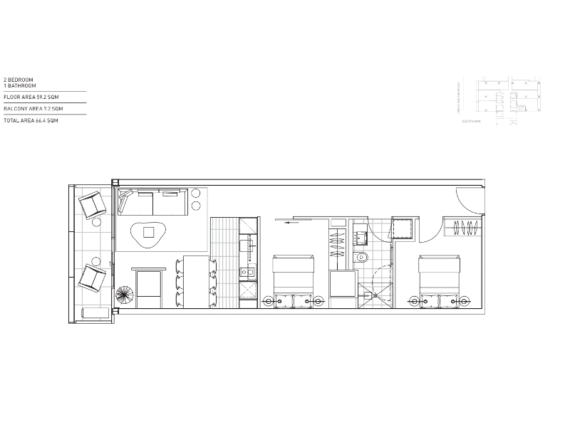
This fully furnished 2 bedroom and 1 bathroom apartment in the heart of the CBD has everything to offer right on your doorstep. A lifestyle in keeping with Melbourne's modernity, diversity and sophistication awaits you at The William. This 8th floor apartment features an air-conditioned living room with captivating views of the CBD and surrounds. Two spacious bedrooms with BIR's, a beautifully appointed bathroom, substantial balcony, stylish kitchen with gas stainless steel cooktop, stone bench top, glass splashback and dishwasher. Enjoy the luxury of the rooftop swimming pool, private lounge, library areas, winter gardens, and a superbly equipped gymnasium make The William exceptional in every sense. Booking an inspection is easy! Simply click on "Request a Time" to register your details for an inspection time that suits you. Alternatively, "Get in Touch" with our Liveability Agents to enquire today, we look forward to meeting you soon! By registering, you will be instantly informed of any updates, changes, or cancellations to your appointment. Applications are processed after inspections have been completed. A link to apply will be provided at the inspection.