18 Parliament Street, Brighton
$1700
Last Listed: 10/06/25
Recommended Properties
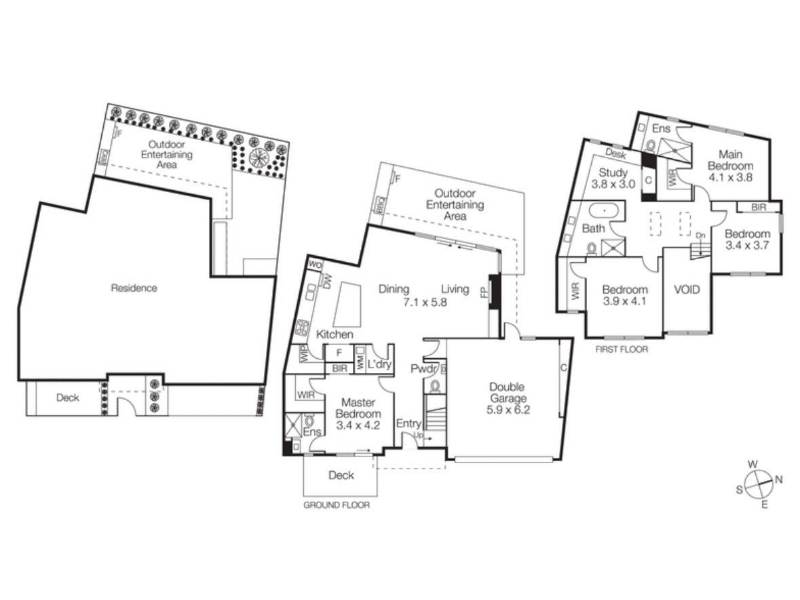
Low Maintenance Luxury in Brighton's Heart
PLEASE NOTE: Open for Inspection Times and Property Availability are subject to change or cancellation. If you wish to be notified of any cancellations or changes please register your details for an inspection. A lifestyle of convenient luxury is what awaits in spectacular town residence, right in the heart of Brighton. Between Bay and Church street, within Firbank and Brighton Grammar, not to mention local restaurants and cafes, just footsteps away. Northern orientation, generous indoor-outdoor living spaces whilst maintaining privacy with the landscaped gardens . This property features a European kitchen flaunting top-of-the-range Gaggenau appliances, sleek stone finishes, integrated Liebherr refrigeration and a butler's pantry. All this complemented by the adjacent outdoor deluxe BBQ kitchen for al fresco enjoyment. Each bedroom boasting generous space, master with walk in wardrobe, ensuites and underfloor heating. Do not miss out