6 Christine Street, Viewbank
$660pw
Last Listed: 22/02/26
Recommended Properties
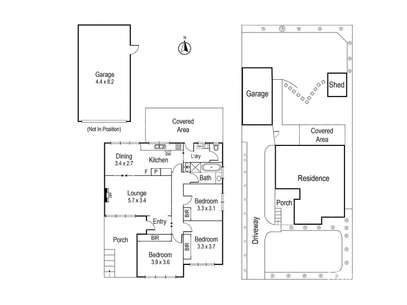
COMFORT & CONVENIENCE IN THE COLLEGE ZONE
The position could not be more perfect with this north facing rear residence that's quietly nestled just footsteps to Viewbank College, Viewbank Primary School, preschool and parklands. Offers three generous bedrooms with built in robes, living room, family meals area adjoining a bright kitchen with stainless steel appliances, central bathroom (separate shower and bath), powder room, laundry, ironing station, ducted heating, undercover entertainment terrace, garden shed plus side driveway to lock up garage. Enjoy the benefits of a sought after location close to the Plenty River Trail and Yarra River parklands and just moments from Viewbank Primary and College. Convenience nearby to Rosanna Village and Train Station, Heidelberg shopping and dining hub, major hospitals, Warringal and Northland Shopping Centres, quality private schools, and La Trobe University. Arranging an inspection time is easy! Simply click 'Book Inspection' button to register for an inspection, or use the 'Contact Agent' facility. By registering, you will instantly be informed of any updates, changes or cancellations to your appointment. Applications will be accepted after you have attended an open for inspection.