6 Willa Avenue, Viewbank
$635pw
Last Listed: 14/08/25
Recommended Properties
PROPERTY WITHDRAWN NO LONGER AVAILABLE
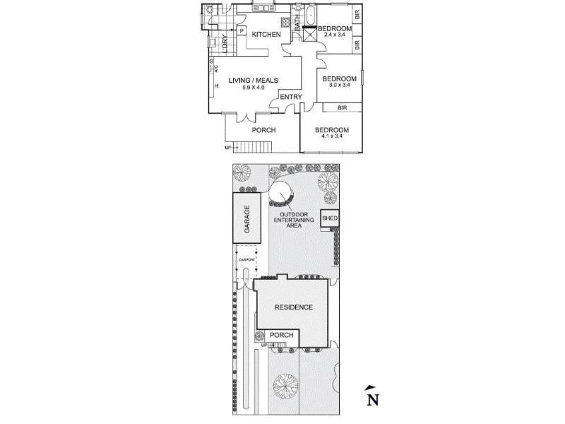
Delightfully refurbished on an elevated, north-facing allotment. Flowing through double doors at one end to a broad entertainers' sized balcony and overlooks a deep north facing backyard at the other end, the home's open plan kitchen with gas cooking, living area is a superb, light filled space with an appealing sense of balance along with a gas heater. Polished timber floors, a stacked stone mantel and timber panelling introduce a sense of chic to compliment a crisp contemporary colour palate. Two of the bedrooms are equipped with built in robes, whilst a central bathroom is pristine offering a separate toilet for convenience. Other features include a lock up garage with additional driveway parking for another three to four vehicles, plus there is a lovely, paved, outdoor dining area. Peacefully positioned near wonderful local parks, Banyule Flats Reserve and Warringal Parkland, this terrific family home is also just moments from cafes of Rosanna, as well as Warringal Shopping Centre and Rosanna Railway Station. Arranging an inspection time is easy! Simply click 'Book Inspection' button to register for an inspection, or use the 'Contact Agent' facility. By registering, you will instantly be informed of any updates, changes or cancellations to your appointment. Applications will be accepted after you have attended an open for inspection.