2/585 Whitehorse Road, Mitcham
$750pw
Last Listed: 25/08/25
FREE utility connection available with this property!
When it’s time to move, look out for the Move Me In invitation, and compare some of the best electricity plans, internet, removalists, gas plans, and more!
Compare dealsRecommended Properties
Build for comfort
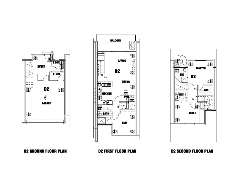
Brilliantly situated on a service road away from traffic, close to shops and a bus stop, and within walking distance of Mitcham Station. It is truly a rare chance to occupy this stunning new property in such a prime location. With laundry cleverly tucked away on the ground floor next to the secured double garage. You can thoroughly enjoy the open-plan kitchen and living area with natural light through large windows and a private balcony. At the other end of the hallway is a decent bedroom serviced by a stunning bathroom with dual access. Further up are another two beautiful bedrooms away from the living zone, each with its own built-in robes and bathroom/ensuite. With split-system located in each bedroom and living zone providing comfort all year round, this might just be the perfect property to live in in the coming hot summer.