505/157 Redfern Street, Redfern
$1,250pw
Move in: 3/04/26
FREE utility connection available with this property!
When it’s time to move, look out for the Move Me In invitation, and compare some of the best electricity plans, internet, removalists, gas plans, and more!
Compare dealsRecommended Properties
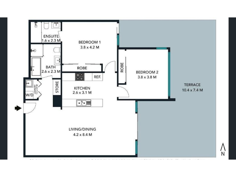
Fully-Furnished apartment with oversized entertainer's balcony
Enjoy the perfect blend of comfort, convenience, and lifestyle in this fully-furnished apartment, ideally positioned just moments from Redfern Station, local supermarkets, and a vibrant café scene. Boasting a generous floorplan and bathed in natural light, the apartment features an expansive open-plan living and dining area that flows seamlessly onto an oversized entertainer's balcony – perfect for alfresco dining or unwinding after a busy day. - Fully-furnished throughout – just bring your suitcase - Huge entertainer's balcony with outdoor setting and BBQ - Gas kitchen with dishwasher and plenty of storage - Two spacious bedrooms with built-in wardrobes - Master bedroom with ensuite and balcony access - Reverse-cycle air conditioning for year-round comfort - Internal laundry with washer and dryer included - Positioned in a secure, well-maintained building - Minutes to Redfern Station, shops, parks, and cafes This property is the ideal inner-city base for professionals or anyone seeking a stylish and low-maintenance lifestyle in a central location.