Recommended Properties
Well positioned family home with pool & backyard
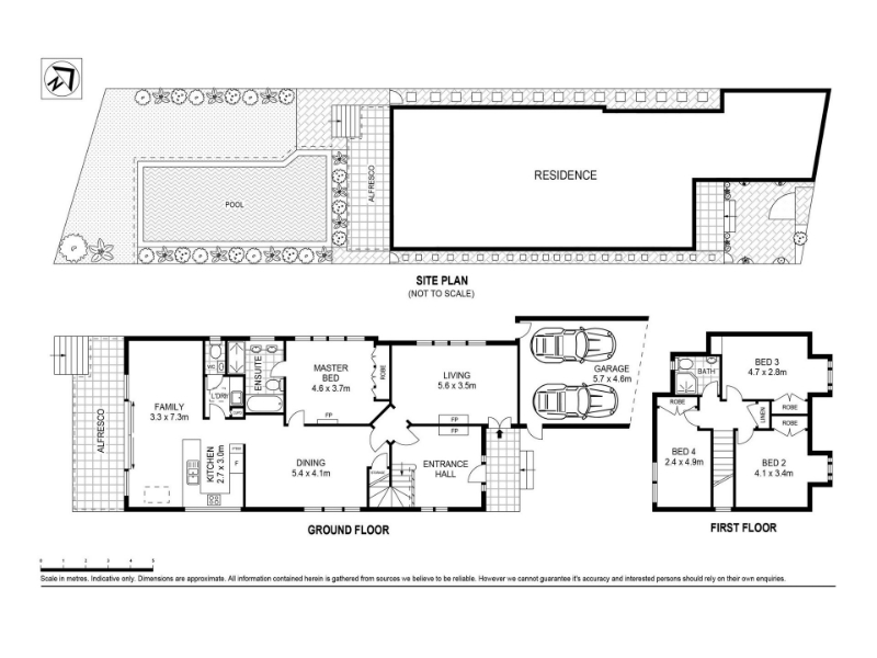
Nestled between the delights of Paddington, Rushcutters Bay & Woollahra, this brilliantly located freestanding Federation home sprawled graciously over 400 square meters in one of the areas most coveted wide tree-lined cul-de-sacs. A unique offering of a private home in an idyllic haven for family living and effortless entertaining. Boasting four spacious bedrooms, the home offers ample space for both relaxation and warm summer days by the pool. Lofty ceilings with exquisite timber floors, continuing to an entertaining deck, a sprawling garden and a refreshing pool, creating a flow between indoor and outdoor living. Enjoy a short stroll to Trumper Park, Paddington 5 Ways, Double Bay, Rushcutters Bay and Edgecliff station. Features include: - Recently painted and polished floorboards throughout the lower level - Multiple, free-flowing living spaces ideal for formal and informal entertaining - Casual living area opening onto entertainment deck and BBQ - Large sun-drenched garden and family sized inground pool with pool maintenance included - Double remote-controlled lock up garage for 2 cars - King sized master bedroom with ensuite and built in robes - 3 additional bedrooms also with built in robes - Fully tiled bathroom upstairs with shower - Internal laundry room with washing machine and dryer - Various air conditioning throughout the house and central heating on the lower level - Close to Sydney Grammar, Ascham School and zoned to Glenmore Road Public School with easy public transport options to other schools in the Eastern Suburbs - Quick links to CBD, Cross-City tunnel and Eastern Distributor ** In the interest of protecting our tenants against leaking of any personal data, please only pay your holding deposit to our agency upon receiving approval from DiJones Real Estate. You will then receive a remittance, in the form of a trust account receipt, from DiJones to confirm receipt of your deposit.