Recommended Properties
Location, Luxe Lifestyle, Latte's – Love It
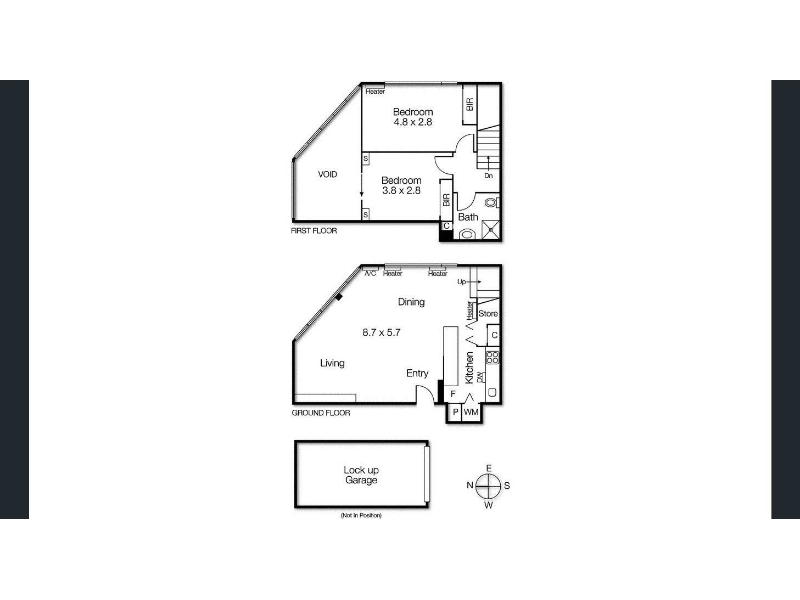
Ideally located off Barkly Street within steps to Acland St shops, trams and St Kilda's lifestyle amenities, this contemporary, well presented property is one of four duplex townhouse-style apartments over two levels showcasing industrial features and generous open plan interiors. - Secure entry off Mirka Lane, polished concrete floors - Expansive nth-facing open plan living and dining area - Built-in entertainment unit, split system heating/AC - Sleek stainless steel kitchen, loads of storage - European laundry - Master and 2nd double bedrooms with built-in robes and carpet - Central fully tiled bathroom with shower - Secure remote single garage, minutes to Acland/Carlisle St trams - Walk to Wood Frog Bakery, Acland St shops/cafes, St Kilda Beach - Moments to St Kilda Botanical Gardens, Albert Park Lake